Mẫu nhà thiết kế đẹp, sang trọng 3 tầng, 5 phòng ngủ

 Với diện tích sàn xây dựng khác rộng 16600x10600, mẫu nhà thiết kế đẹp, sang trọng 3 tầng, 5 phòng ngủ với phối cảnh thiết kế ấn tượng và tinh tế. Kính mời quý bạn đọc cũng như quý khán giả cùng tham khảo để có thêm những ý tưởng thiết kế hoàn thiện cho công trình của gia đình

Mẫu nhà thiết kế đẹp, sang trọng 3 tầng, 5 phòng ngủ
Mẫu thiết kế nhà 3 tầng

Mặt tiền thiết kế nhà 3 tầng và 5 phòng ngủ

Không gian mặt tiền ưa thích sự thông thoáng, đón nhận được nhiều ánh sáng cũng như gió thoáng. Khối ban công thiết kế rộng, sử dụng vật liệu kính để giải quyết bài toán đón sáng và đón gió cho dòng vượng khí lưu thông phía trong.

Tiến độ thi công hoàn thiện công trình dự kiến khoảng 8 tháng, tổng kinh phí đầu tư trọn gói không vượt quá 3 tỷ cho mẫu ngôi nhà này.

Diện tích xây dựng tại đường lớn, cho đến việc tập kết nguyên vật liệu khá thuận tiện và dễ dàng là một ưu điểm để tiết kiệm chi phí. Đồng thời nền đất khá cứng chắc, tốt cho việc thi công móng băng. Với phương án thi công móng bằng thì thời gian cũng như kinh phí đầu tư có thể giảm bớt và tiết kiệm chi phí tối đa.

Mẫu nhà thiết kế đẹp, sang trọng 3 tầng, 5 phòng ngủ
Hình ảnh phối cảnh bên ngoài


Hình khối kiến trúc cũng như kết cấu tuổi thọ công trình là điều đáng quan tâm, sau quá trình tính toán, kiến trúc sư chúng tôi đã chốt phương án. Phương án bao gồm phương án thiết kế mặt đứng, mặt cắt cũng như ý tưởng thiết kế hoàn thiện sơ bộ cho toàn bộ công trình.

Thiết kế nhà với những thế mạnh cũng như sự phố biến, mẫu thiết kế nhà mang đến một sức sống cũng như một làn gió mới cho không gian kiến trúc.

Từ thực tế khảo sát cùng với nhu cầu của gia đình, mặt tiền và hình khối được thiết kế hài hòa và tương quan với nhau. Hình khối ngoài việc phô diễn những đường nét khỏe khoắn những thức cột đẹp mắt, kiên cố và hiện đại với phần chân và đầu cột được trang trí tỉ mỉ với những họa tiết hoa văn chỉn chu.

Hình khối thiết kế ngôi nhà 3 tầng toát lên sự vững chắc, với những đường cong cũng như khối vòm phần mái, ban công và phần tường được ốp đá tự nhiên, phô diễn sự hài hòa. Khối dầm tầng 2 cho đến tầng 3 được đua rộng hơn so với tầng 1 khoảng gần 1.5m. Hệ thống ban công thiết kế sắt được phun sơn tĩnh điện màu đen, với công nghệ gia công cao cấp, họa tiết hoa văn đẹp mắt, đem đến không gian mặt tiền thoáng rộng và khá cân chỉnh với toàn bộ hệ thống thiết kế công trình.

Khối hình chạy dài hình chữ nhật, kết hợp với mái thái hình khối giật cấp, độ dốc và khoảng thoải rộng vừa đủ, ngoại thất bắt mắt, sức cuốn hút mãnh liệt của công trình luôn hiện diện và chinh phục người xem.

Bản vẽ mặt bằng nhà 3 tầng

Ngay sau khi nhìn thấy phối cảnh thiết kế mẫu nhà thiết kế đẹp, sang trọng 3 tầng, với sự hài hòa và cụ thể của từng hạng mục, chúng tôi sẽ cho bạn xem tiếp các mặt cắt chi tiết từng tầng.

bản vẽ mẫu nhà thiết kế đẹp, sang trọng 3 tầng, 5 phòng ngủ
Bản vẽ mặt cắt tầng 1

Tầng 1: 

Được thiết kế tích hợp không gian sinh hoạt chung và không gian sinh hoạt riêng cho người lớn. Phòng khách rộng bố trí ngay cạn sảnh chính trước mặt tiền, thiết kế đối diện là phòng làm việc. 

Cầu thang thông tầng được đặt ở trung tâm, đối diện với sảnh thang thông phòng khách. Phòng ăn và bếp nấu được thiết kế phía trong, 1 phòng ngủ khép kín dành riêng cho người lớn được bố trí góc trong cùng gần với phòng ăn của gia đình.

bản vẽ mẫu nhà thiết kế đẹp, sang trọng 3 tầng, 5 phòng ngủ
Bản vẽ mặt cắt tầng 2


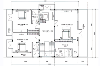
Tầng 2:

 Là không gian sinh hoạt chung của gia đình nhỏ, thiết kế phòng ngủ rộng và thoáng, hướng ban công và có phòng thay đồ, nhà vệ sinh khép kín đáp ứng nhu cầu sinh hoạt nhu cầu sử dụng không gian của vợ chồng trẻ.

Đối diện với sảnh thang thông tầng, thiết kế và bố trí 1 phòng sinh hoạt chung nhỏ. Phía trong cùng là phòng ngủ , 2 phòng ngủ đều có thiết kế khép kín, có lối ban công để có thể đón sáng cũng như đón gió thoáng cho toàn bộ không gian phía trong.

bản vẽ mẫu nhà thiết kế đẹp, sang trọng 3 tầng, 5 phòng ngủ
Bản vẽ mặt cắt tầng 3

Tầng 3: 

Mẫu biệt thự 3 tầng có trọng tâm bố trí khoa học với 1 phòng thờ hướng ban công trước và khoảng sân thượng, đón nhận được nhiều ánh sáng cũng như có thể giúp cho dòng vượng khí lưu thông tốt hơn.

Một phòng ngủ cho khách ở lại qua đêm được bố trí trên tầng 3, hoàn toàn tách biệt so với không gian sinh hoạt của gia đình. Phòng karaoke được thiết kế khá rộng và thoáng, là không gian vui chơi cũng như giải trí của các thành viên. Phòng giặt nhỏ được bố trí hướng ra sân phơi, đặt ngay cạnh cầu thang thông tầng nên thuận tiện cho việc di chuyển cũng như sử dụng.

Chúng tôi hy vọng rằng với mẫu nhà thiết kế đẹp, sang trọng 3 tầng, 5 phòng ngủ này sẽ giúp bạn có thêm những ý tưởng mới.


تعليقات

المشاركات الشائعة

Những mẫu thiết kế nội thất chung cư đẹp lung linh 2021

Download File CAD Hàng Rào Lưới, Tải Bản Vẽ Autocad dwg

Những mẫu biệt thự tân cổ điển có thiết kế đẹp mắt & ấn tượng nhất

10 loại cây trồng phong thủy tạo không gian trong văn phòng

Phương án thiết kế nhà 2 tầng tuyệt đẹp tại Úc

Nhà biệt thự đẹp 232m2 luôn thoáng mát nhờ thiết kế vườn trong